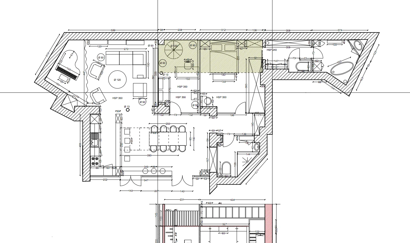
Atelier 207

Book avant-projet de transformation d'un ancien atelier d'artiste en appartement privé.
Hommage à Bernard Buffet en résonance avec l'histoire des nouveaux propriétaires intimement liée à l'histoire du célèbre peintre.
Également lieu de rendez-vous d'artistes parisiens.

jaillon-studio-atelier-207
 

L'esprit Atelier Bernard Buffet

Capture d’écran 2017-05-31 à 20.36.10.png

Inspiration

Capture d’écran 2017-05-31 à 20.36.25.png

Ambiance

Vue panoramique 3D


Salle à manger


Cuisine


Salon


Chambre Annabel


Salle de bain


voir plus de projets